売地
価格:430万円
| 所在地 | 熊谷市小曽根 |
|---|---|
| 交 通 | JR高崎線「熊谷」駅 バス11分 |
| 土地面積 | 244.33m²(73.90坪) |
| 地目 | 宅地 |
| 建築条件 | なし |
| 取引形態 | 仲介 |
| 設備 | 公営水道、LPG、浄化槽 |
|---|---|
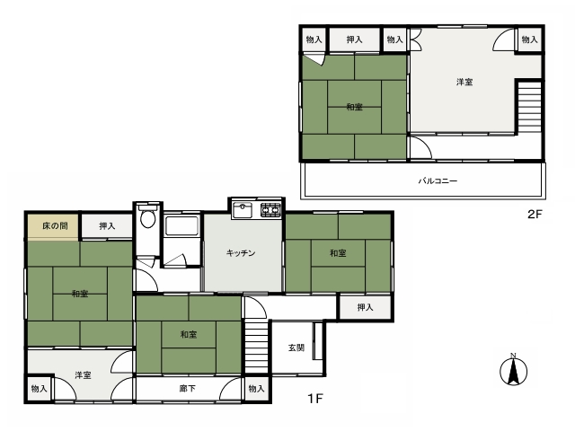
| 備考 | ◎古家付きの現況渡し (木造平家建/63.73m²/*2Fに未登記部分37.19m²あり/S.44.11築) *都市計画法第34条12号 ・不動産のFAQの該当欄をご参照ください |
土地概要
| 都市計画 | 市街化調整区域 |
|---|---|
| 用途地域 | ― |
| 土地権利 | 所有権 |
| 建蔽率/容積率 | 60% / 200% |
| 法令上の制限 | 都市計画法第34条12号 |
| 道路 | 南東側約5.2m公道、西側約4.5m公道 |
※ 掲載されている全ての不動産情報・画像・文章・構成等についての無断転載、無断使用は固くお断りします。サイト内のコンテンツについての著作権は当サイトに帰属します。 尚、掲載物件の内容及び画像、間取図等は、全て現況を優先とします。





